


這次有機會參加企業交流,參觀了一家機械大廠的企業總部,真的是大開眼界!本來以為會是那種冰冷冷的生產線,沒想到一踏進去我就被震撼到了!這辦公室商業裝潢也太美了吧!完全顛覆我對傳產的想像,根本就是美術館來著!
每一層樓都有自己的風格和特色,但它們又緊密連結在一起,完美把公司的企業文化融入其中。整個空間給我的感覺就是:專業、舒適、設計感兼具,根本就是我夢寐以求的辦公空間,如果能在這樣的環境工作該有多幸福!




廠辦設計師現身說法~
更讓我驚喜的是,今天負責這棟廠辦設計的亞筑設計師也來參加交流會,親自分享每一層樓背後的設計理念。聽完我超佩服,也超想直接回去叫老闆請設計師來幫我們辦公室大改造,或者...乾脆請來幫我裝潢家裡也不錯(開始幻想模式😆)
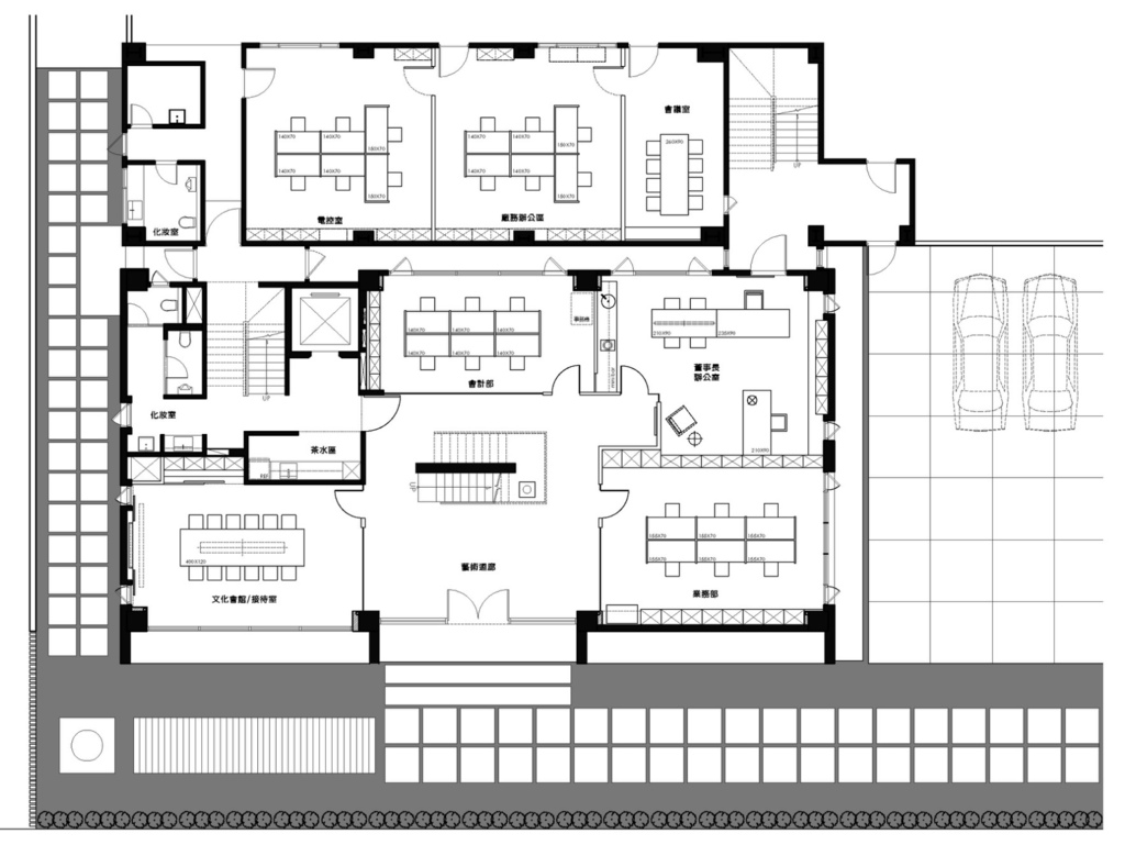
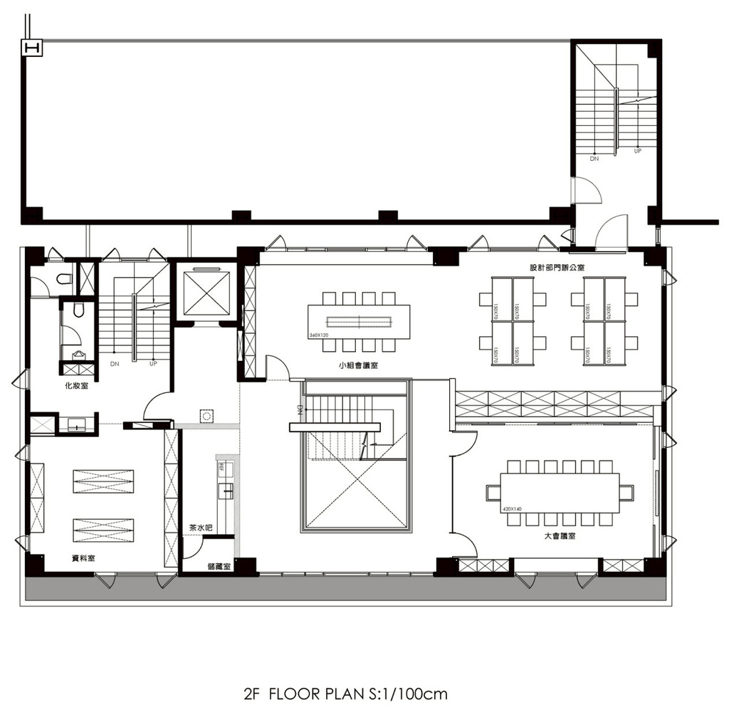
▼1~4樓平面配置圖▼




設計核心想法~
設計理念│不只是建築,更是企業的靈魂展現
這不是一棟只為工作而生的建築,它是一個讓人看見產業價值的舞台,更是一個能說故事的空間容器。
我特別喜歡這個概念,已經看過太多千篇一律的辦公空間,但這裡不一樣!它把機械產業的精神完全融入到空間裡,讓每個角落都在訴說著企業的故事。
讓來訪的人、工作的員工,都能真切感受到:這不只是一棟建築,這是企業文化的基地,是職人工藝的現場演出。
▼3D模擬圖▼







帶大家一起走進這間有故事的企業總部~
一樓│用工業風,寫下企業的第一印象
一樓是企業的門面,是公司對外的第一印象。亞筑設計師真的很用心,把機械產業的DNA藏在每個細節裡。



▼整個空間用了紅磚、H型鋼、清水模這些工業感的材質,堆疊出公司穩重又帶點創新的感覺。




▼走廊一邊是品牌歷程的藝術展示,另一邊是董事長辦公室,整個動線設計得很有故事性。



▼最讓我印象深刻的是這個接待桌,桌腳竟然是用真實的模具打造的!坐下來的瞬間,就能感受到這家公司技術的分量。連門把都是用機械部件製作的,每次推門進出,都像是在體驗職人的巧思。







二樓│創意與機械碰撞的設計部門
二樓是設計部門和會議室,氛圍明快而有條理。
我很喜歡這裡延續了樓下的清水模和鋼材的工業元素,但又透過大面玻璃引進自然光,讓整個空間充滿活力,感覺在這裡工作,靈感都會源源不絕!




▼會議桌的桌腳是用鋼筋構成的,繼續呼應機械的細節,而滑門收納櫃的門片上,還鑲嵌了裝飾性的螺栓,處處都能感受到企業的精神,在這裡,設計不只是美學,更是企業文化的具體展現,讓我覺得原來設計可以這麼有深度!




三樓│鋼鐵工業風格中的溫暖角落
三樓是員工的開放式餐廳和休息區,這裡根本就是工作裡的「世外桃源」!在冰冷的工業結構中,設計師卻巧妙留下一個溫暖的空間,讓大家在這裡交流、放鬆,好好轉換一下工作的心情。



▼雖然整體還是黑白灰的基調,但穿插了溫潤的原木桌椅和跳躍的飽和色塊,讓這個空間在理性和溫度之間找到了一個完美的平衡點。


四樓│品味與文化的私密款待空間
最頂層是私人接待空間,有臥室、書房、起居室,還有藝術品展示牆、壁爐和輕食吧台。聽起來就很像高級飯店!這裡就像是一個精緻的私人會所,用來接待重要客戶或讓主管休息。




▼這裡的設計風格更加內斂和沉穩。清水模和木質的紋理靜靜鋪陳,不經意地就展現了一家公司對品味、文化和細節的深刻理解與掌握,從這裡就能看出一個成熟企業的格局與高度。





小結語|我的感想
這趟參訪,我真的很有感觸,讓我重新定義辦公空間該有的樣子,原來企業辦公室可以不只是辦公室,它可以是這麼有生命力、有故事的空間!
好的空間設計不只是美觀,更重要的是能夠傳達精神和價值。這棟建築就是這樣,它不炫耀、不浮誇,但每個角落都在訴說著企業的專業和用心。如果有一天我也能在這樣動人的空間裡工作,那該有多幸福啊!當然如果有機會,也想把這份溫度與設計感,搬進自己的生活裡😍
設計公司資訊|亞筑室內設計
地址:台南市東區崇德一街72號6F
電話:06-2602776
Instagram:www.instagram.com/artru.design/
Facebook:https://www.facebook.com/ARTRUDESIGN
留言列表
